Jump to Content
Jump to Navigation
Jump to Footer
Shortcut Links Menu
shortcuts
Advising
Course Catalogs
Graduation
Hawk Card & Purple Points
Map & Directions
First Year Experience
Residence Life - Housing
Student Accounts
Technology Services
Records & Transcripts
Visitor & Parking Services
Shortcut Links Menu
Admissions
Academics
Campus Life
Events
Campus Info
Students
Fac/Staff
Alumni
Search
Search
Admissions
Academics
Campus Life
Events
Athletics
Campus Info
E-Mail
WINS
D2L
Directory
Password Reset
Arey Floor Plan
Residence Halls
Assignments
Services
Involvement
Staff
Policies and Procedures
UW-W Home
»
Residence Life
»
Residence Halls
»
Hall Tours
»
Arey
»
Arey Floor Plan
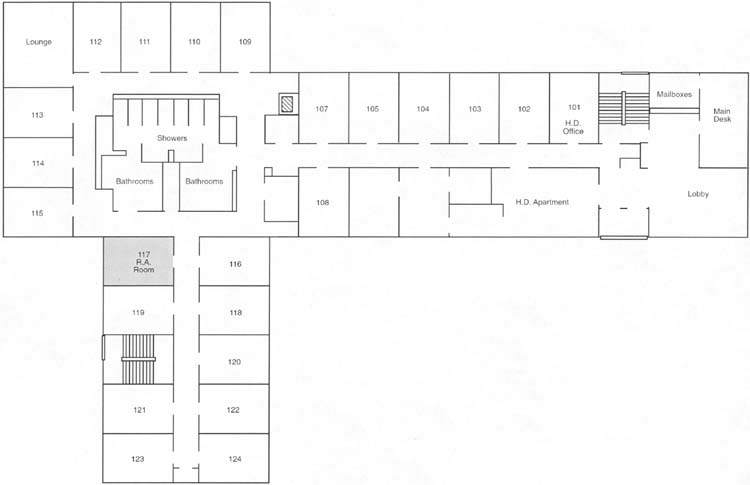
Arey First Floor:
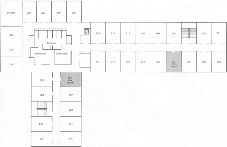
Arey Second Floor:
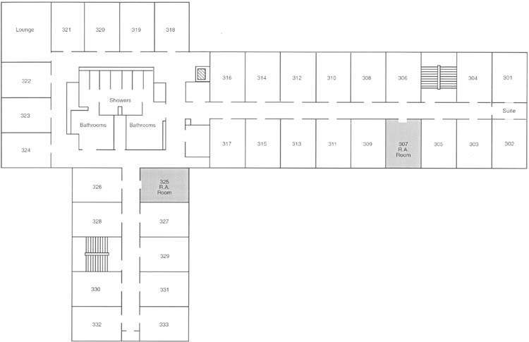
Arey Third Floor:
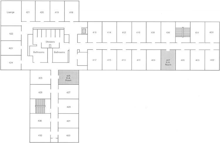
Arey Fourth Floor:
UW-W Home
»
Residence Life
»
Residence Halls
»
Hall Tours
»
Arey
»
Arey Floor Plan
171.67.65.203
http://www.uww.edu/